Terratetto Semindipendente in Vendita a Mombercelli

Mombercelli - Rustico/Casale in vendita
50.000 €
Caratteristiche principali
200 m²
Superficie
4
Locali
2
Camere
1
Bagni
Descrizione
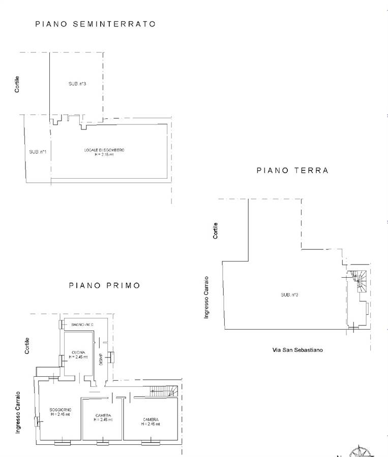
A pochi passi dal centro storico di Mombercelli, Studio Montegrosso propone in vendita un versatile terratetto semindipendente. L'immobile si propone come un'interessantissima opportunità di investimento, donando nuova luce alla costruzione. La proprietà accoglie al piano terra, un locale commerciale di ampie dimensioni, perfetto da sfruttare come attività propria o da mettere a reddito. L'area è suddivisa in due sale di utilità versatile. E' presente in oltre un pratico WC che lo rende idoneo all'utilizzo. La posizione centrale dello stabile potrebbe far pensare all'apertura di un luogo di ritrovo, ideale in una caratterista realtà com'è il comune di Mombercelli. L'appartamento è ubicata al livello superiore. L'abitazione è spaziosa e ospitale. Il soggiorno e la cucina abitabile compongono la deliziosa zona giorno. La camera da letto patronale è affiancarla da una seconda stanza di dimensione leggermente più contenuta. Il bagno è finestrato. Completa l'edificio un vasto locale di sgombero che occupa il piano seminterrato. La combinazione di locale commerciale e abitazione rende questo immobile ancora più interessante agli occhi di chi vuole la comodità di non allontanarsi troppo dal luogo di lavoro o anche di chi vorrebbe ottenere una rendita dall'affitto del locale. L'intera proprietà si presta a personalizzazione.
Caratteristiche
Codice:
mombercelli terratetto 55
Città:
Mombercelli
Categoria:
Rustico/Casale
Locali:
4
Camere:
2
Bagni:
1
Mq:
200
Mq calpestabili:
100
Anno:
1980
Classe energetica:
F
25,86 kWh/m²a
Stato Immobile:
Mediocre
Grado:
Medio
Posizione:
Centro Storico
Panorama:
Vista Giardino
Lati Liberi:
1
Giardino:
No
Arredi:
Non Arredato
Tipo Soggiorno:
Soggiorno
Tipo Cucina:
Abitabile
Riscaldamento:
Autonomo
Tipo Riscaldam.:
Caldaia
Tipo Impianto:
Termosifoni
Fonte Energetica:
Metano
Acqua Calda:
Caldaia
Infissi:
Legno Doppio Vetro
Serramenti:
Discreto
Persiana:
Persiana Legno
Accessori
Armadio a Muro
Canna fumaria
Ripostiglio
Planimetrie
Mappa
Vicolo San Sebastiano, 2 - Mombercelli (AT)
Cookie preference